Mieszkanie na sprzedaż Krynica-Zdrój

2 pokoje
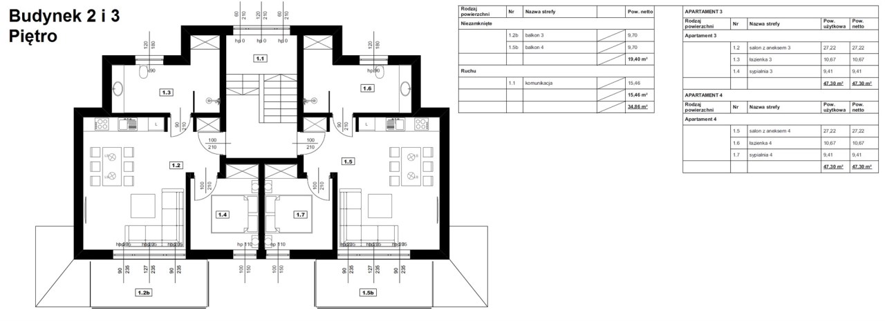
47.30 m²
16 000,00 zł/m2
2 piętro
HEG-MS-746

756 800 zł

Mieszkanie na sprzedaż
Bez prowizji

Szczegóły oferty

Symbol oferty HEG-MS-746
Powierzchnia 47,30 m²
Powierzchnia użytkowa [m2] 47,30 m²
Liczba pokoi 2
Rodzaj budynku apartamentowiec
Technologia budowlana tradycyjna murowana
Standard
Opłaty wg liczników gaz, prąd, woda
Piętro 2
Garaż garaż pod budynkiem
Stan lokalu deweloperski
Okna PCV
Instalacje nowe
Balkon jest
Liczba balkonów 1
Widok góry
Gaz jest
Woda jest
Otoczenie góry
Ogrzewanie gazowe
Pomieszczenia
Kamil Maciej Ruchała

Kamil Maciej Ruchała

Agent Nieruchomości

Napisz wiadomość 66 Ofert

Opis nieruchomości

NA SPRZEDAŻ APARTAMENTY
W LUKSUSOWEJ INWESTYCJI


Oferta dotyczy lokali w stanie wykończonym.

Każde z mieszkań będzie opomiarowane indywidualnie.

Ogrzewanie piecem gazowym 2 funkcyjnym w każdym z mieszkań.

Mieszkania funkcjonalne i ustawne. Przewidziane są duże przeszklenia.

Budynki będą nawiązywały stylistyką do architektury góralskiej w nowoczesnym wydaniu, połączenie szkła, drewna i kamienia.

Mieszkania objęte są 23% VAT z możliwością jego odliczenia.

Zakończenie budowy budynku przewidywane jest na III kwartał 2024 roku.

Do sprzedawanych mieszkań można będzie dokupić miejsce postojowe w parkingu podziemnym w cenie 50 000 zł brutto lub na zewnątrz w cenie 25 000 zł brutto.

Teren będzie zagospodarowany, wyłożony kostką, ogrodzony z bramą wjazdową na pilota.

Zamontowana zostanie fotowoltaika oraz stacje ładowania samochodów elektrycznych w garażach pod budynkiem.

Ekspozycja budynków południowa z widokiem na Jaworzynę.

Działka na której powstaje inwestycja, położona na wzniesieniu - południowe zbocze z rozległą niezakłóconą panoramą na góry w bliskim sąsiedztwie Góry Parkowej.

Ciesz się wspaniałymi widokami, korzystaj z możliwości wypoczynkowych i rekreacyjnych jakie oferuje Krynica-Zdrój i beskidzkie szlaki. Wypoczywaj w wyjątkowych warunkach kiedy chcesz – o każdej porze roku.

Główne zalety:

- lokalizacja – ok. 2 km od ścisłego centrum Krynicy-Zdrój

- garaże podziemne i zewnętrzne miejsca postojowe

- kameralna inwestycja na terenie zamkniętym – duża prywatność


Cena za apartament 47,30 m2 - 756 800 zł netto + 23% VAT

Nota prawna

Prezentowana oferta ma charakter informacyjny, nie stanowi oferty      handlowej w rozumieniu Art.66 par.1 Kodeksu Cywilnego.

Podobne oferty

Bez prowizji

Mieszkanie na sprzedaż

Krynica-Zdrój

2 pokoje 46 m2 15 000,00 zł/m2
Bez prowizji

Mieszkanie na sprzedaż

Krynica-Zdrój

2 pokoje 35 m2 16 971,40 zł/m2
Bez prowizji

Mieszkanie na sprzedaż

Krynica-Zdrój

2 pokoje 42 m2 14 250,01 zł/m2
Bez prowizji
Oferta specjalna

Mieszkanie na sprzedaż

Krynica-Zdrój

1 pokoj 35 m2 15 900,00 zł/m2
Oferta specjalna

Agent Nieruchomości

Proszę wprowadzić poprawne imię i nazwisko
Proszę wprowadzić poprawny numer telefonu
Proszę wprowadzić poprawny adres e-mail
Proszę zaznaczyć wymagane zgody
Rozwiąż równanie:
18 2
Niepoprawny wynik