Dom na sprzedaż Krynica-Zdrój

9 pokoi
230.00 m²
4 456,52 zł/m2
HEG-DS-568

1 025 000 zł

Dom na sprzedaż
Bez prowizji
Video

Szczegóły oferty

Symbol oferty HEG-DS-568
Powierzchnia 230,00 m²
Powierzchnia działki [m2] 582 m²
Liczba pokoi 9
Rodzaj domu jednorodzinny
Technologia budowlana cegła
Standard
Liczba pięter w budynku 2
Garaż brak
Okna PCV
Instalacje częściowo wymienione
Balkon jest
Liczba balkonów 2
Liczba tarasów 1
Zagosp. działki zagospodarowana
Pokrycie dachu blacha
Pozwolenie na użytkowanie tak
Stan budynku do odświeżenia
Podpiwniczenie tak
Ogrodzenie działki ogrodzona
Rok budowy 1985
Gaz jest
Woda jest
Dojazd kostka brukowa
Ogrzewanie gazowe
Prąd jest
Kanalizacja tak
Pomieszczenia
Łukasz Kasztelan

Łukasz Kasztelan

Agent nieruchomości

Napisz wiadomość 66 Ofert

Opis nieruchomości

Dom w Krynicy Zdroju przy ulicy Zielonej o powierzchni ok 230m/kw.

 

Nieruchomość położona w malowniczej części Krynicy, składająca się z działki o powierzchni 5,82 ara na której posadowiony jest dom o powierzchni około 230m/kw. Działka częściowo utwardzona i z dostępem do potoku oraz fragment pochyły i zadrzewiony.

Dom z lat 80 o konstrukcji murowanej (cegła), pokryty blachą, na zewnątrz wykonana izolacja termiczna, ogrzewanie nowym piecem gazowym 2-funkcyjnym. Prawomocne pozwolenie na użytkowanie!

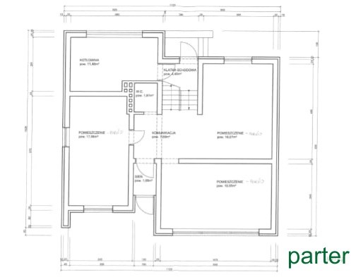
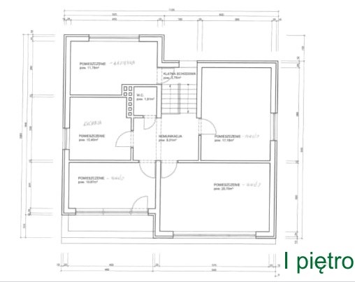
Budynek składa się z 3 kondygnacji użytkowych.

Na parterze znajdują się, 3 duże pokoje, przedpokój i WC. Jest także kotłownia gdzie umiejscowiony jest nowy piec dwu-funkcyjny oraz bojler o poj. 300 L.

Na pierwszym piętrze, 3 duże pokoje, kuchnia, łazienka oraz osobne WC.

Na drugim piętrze znajdują się 3 duże pokoje. Niewielki stryszek. 

Rzuty poszczególnych pięter znajdują się w galerii.

Budynek w stanie do zamieszkania oraz w części do remontu lub poprawek.

Dom sprzedawany jest wraz z całym wyposażeniem.


Budynek położony w pobliżu lasu, spacerem można się dostać na szlak oraz na ulicę Zamkową gdzie znajduje się stacja narciarska. Poniżej ulicy jest Hala Lodowa oraz centrum miasta.

Możliwość oglądania w każdym momencie po wcześniejszym umówieniu.

Materiał wideo

Lokalizacja nieruchomości

Podobne oferty

Bez prowizji

Dom na sprzedaż

Krynica-Zdrój

6 pokoi 300 m2 2 500,00 zł/m2
Bez prowizji
Bez prowizji

Dom na sprzedaż

Krynica-Zdrój

4 pokoje 125 m2 7 176,00 zł/m2
Bez prowizji
Bez prowizji

Dom na sprzedaż

Krynica-Zdrój

5 pokoi 155 m2 8 322,58 zł/m2
Bez prowizji

Dom na sprzedaż

Krynica-Zdrój

158 m2 6 006,33 zł/m2

Agent nieruchomości

Proszę wprowadzić poprawne imię i nazwisko
Proszę wprowadzić poprawny numer telefonu
Proszę wprowadzić poprawny adres e-mail
Proszę zaznaczyć wymagane zgody
Rozwiąż równanie:
13 4
Niepoprawny wynik